进口电动防爆调节阀
(关键词:进口带煤安防爆调节阀,电动调节阀防爆等级,电动防爆调节阀参数图片)
一、进口电动防爆调节阀 产品概述
德国沃德WODE的进口电动防爆调节阀适用于过程控制技术方面的大多数应用场合,电动防爆调节阀特别适用于在具有某种要求的工作下应用,由于其调节范围宽,可选择不同曲面的阀芯,及其在关断状态下的高度密封性。电动防爆调节阀属于顶部导向型控制阀,配由3810系列电子式电动执行器,电动执行机构内有伺服放大器,无需另配伺服放大器,有输入控制信号(4~20mADC或1~5VDC)及单相电源即可控制运转,实现对压力、流 量、温度、液位等参数的调节。电动防爆调节阀具有体积小,重量轻、连线简单、调节精度高等特点,电动防爆调节阀,隔爆电动单座调节阀广泛应用于电力、石油、化工、冶金、环保、轻工、教学和科研设备等行业的工业过程自动控制系统中。

二、进口电动防爆调节阀 技术参数
公称通径(DN) | 20 | 25 | 32 | 40 | 50 | 65 | 80 | 100 | 125 | 150 | 200 | 250 | 300 | |
阀座直径(dn) | 20 | 25 | 32 | 40 | 50 | 65 | 80 | 100 | 125 | 150 | 200 | 250 | 300 | |
额定流量系数(KV) | 单座 | 6.9 | 11 | 17.6 | 27.5 | 44 | 69 | 110 | 176 | 275 | 440 | 630 | 875 | 1250 |
套筒 | 6.3 | 10 | 16 | 25 | 40 | 63 | 100 | 155 | 250 | 370 | 580 | 900 | 1300 | |
允许压差(MPa) | 单座 | 3.8 | 3.2 | 3.0 | 2.0 | 1.8 | 1.5 | 1.4 | 1.0 | 0,7 | 0.6 | 0.5 | 0.3 | 0.1 |
套筒 | 6.4 | 6.4 | 5.2 | 5.2 | 4.6 | 4.6 | 3.7 | 3.7 | 3.5 | 3.1 | 3.1 | 2.6 | 2.2 | |
公称压力(MPa) | 1.6、2.5、4.0、6.4、10.0、16.0、32.0或者Calss150~Class2500 | |||||||||||||
额定行程(mm) | 16 | 25 | 40 | 60 | 100 | |||||||||
阀盖形式 | 标准型(-17~+250℃)、高温型(+250~+450℃)、低温型(-40~-196℃)、波纹管密封型(-40~+350℃) | |||||||||||||
压盖形式 | 螺栓压紧式 | |||||||||||||
密封填料 | V型PTFE、V型柔性石墨填料 | |||||||||||||
阀芯形式 | 单座式、套筒式 | |||||||||||||
流量特性 | 等百分比、直线型 | |||||||||||||
配置执行器类别 | 2SB系列、2SA系列、3810系列、PSL系列等电动执行器(客户指定品牌亦可) | |||||||||||||
执行器参数 | 电源电压:220V、输入信号:4-20mA或1-5V·DC、输出信号:4-20mA·DC | |||||||||||||
防护等级:相当IP65、隔爆标志:ExdⅡBT4(ExdⅡBT6特殊定制)、手操功能:手柄 | ||||||||||||||
环境温度:-25~+70℃、环境湿度:≤95% | ||||||||||||||
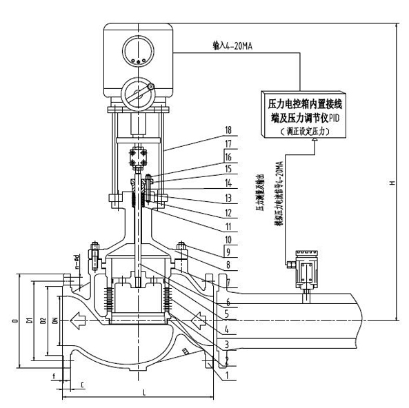
三、进口电动防爆调节阀 结构图

注:由于网站版面的原因,具体外形尺寸请致电沃德各代理商。
四、进口电动防爆调节阀 性能指标
项目 | 指标值 | ||
基本误差% | 配3810L±2.5; 配PSL±1.0;配2SB±1.0 | ||
回差% | 配381L ±2.0; 配PSL±1.0;配2SB±1.0 | ||
死区% | 1.0 | ||
始终点偏差% | 电开 | 始点±2.5 | 终点±2.5 |
始点±2.5 | 终点±2.5 | ||
电关 | 始点 | ±2.5 | |
终点 | ±2.5 | ||
额定行程偏差% | ≤2.5 | ||
泄露量L/h | 0.01%×阀额定容量 | ||
可调范围R | 30:1 | ||
如有任何疑问.您可以致电给我们,我们一定会尽心尽力为您提供优质的服务!如果您有需要咨询更详细的产品信息;迎联系德国沃德WODE授权一级代理商:北京永德宝阀门有限公司





























冀公网安备13010402003046号