建筑气密性是指在风压和热压的作用下,保证建筑围护体系内温度恒定的重要指标之一,直接关系到室内受冷风或热风渗透而造成热损失,即室内能量损失,气密性等级越高,热损失越小。再这种情况下,把防水透气膜、隔汽膜在金属屋面应用经验,应用到窗口的大胆实验,带来了意想不到的气密性效果。
被动房中要求压力测试换气次数即气密性n50≤0.6h-1,较高的气密性大大减少了室内外的空气交换,当冬季采暖时,高气密性减少了冷风向室内渗透造成的热损失,降低了采暖能耗需求,同样,夏季制冷时,减少了室外热空气渗透,降低了空调能耗。当然,气密性的好坏并不是降低能耗的唯 一指标,其中还包括了门窗、墙体等构件的传使用。
传统的施工工艺解决不了窗口的气密性问题,科德邦自粘型防水透气膜、科德邦自粘型隔汽膜通过实际应用、跟踪实验可以大大提窗口的气密性,减少热损导热损失。
1 气密性设计注意事项
1.1 气密层位置及表示
气密层主要由建筑外围护结构,包括门窗、墙体、屋面、地板等构成,一般位于外墙内侧且连续包裹整栋建筑的外围护结构。在设计图纸中,一般会用红色粗线在建筑围护结构内侧表示,但是还是有部分设计将气密层遗漏,致使施工人员不能明确气密层位置,导致施工疏漏而影响被动房效果,如图1。
1.2 常见采取气密性措施的部位
1.2.1 被动式外门窗
住房和城乡建设部2015年10月颁布《被动式超 低能耗绿色建筑技术导则》
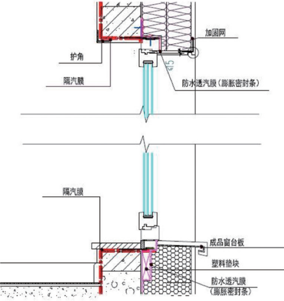
规定:“外门窗应有良好的气密、水密及抗风压性能,其气密性等级不应低于8级”相比传统建筑,被动房门窗均采用外挂式安装。与此同时,门窗框与墙体连接部位要采用防水隔汽膜(内侧)和防水透气膜(外侧)的措施,避免框体与墙体之间缝隙出现漏气或漏水的风险,如图2。
图1 气密层标注示意 图2 门窗设计节点


图3 自粘型防水透气膜、隔汽膜在气密性处理的施工示意图

住房和城乡建设部发布的《建筑装饰装修工程质量验收规范》GB50210-2001中4.2.4条明确规定:“抹灰工程应分层进行。当抹灰总厚度大于或等于35mm时,应采取加强措施。不同材料基体交接处表面的抹灰,应采取防止开裂的加强措施”,并在说明中明确提出:“不同材料基体交接处,由于吸水和收缩性不一致,接缝处表面的抹灰层容易开裂,均应采取加强措施,以切实保证抹灰工程的质量。”因此在被动房设计时,墙体砌筑及抹灰均要采取气密性保障措施,防止因墙体不均匀沉降或收缩致使墙体开裂或抹灰层开裂,尤其在砌体抹灰设计时,要在设计中明确防开裂措施,并确保气密性措施牢固可靠。1.2.2 墙体砌筑及抹灰
1.2.3 围护结构整体性
为保证建筑围护结构气密层的整体性,在设计时,对穿透外墙、屋面、地板管线或预埋管均应采取气密性处理措施,如图3。
2 气密性施工注意事项
俗话说“三分设计、七分施工”。被动房终是否能够达到节能的目标,施工的精细化就起到决定性作用。
2.1 门窗安装工程
被动房外门窗均采用外挂式安装,外侧采用垫木和用角码进行固定,内外两侧分别采用防水隔汽膜和防水透气膜膜进行粘贴密封,工序繁琐导致比较容易出现气密性隐患,应注意以下问题:
(1)在进行内外侧防水膜施工时,门窗角部和角码、垫木部位粘贴难度较大,因此此部位需要设置加强层,其中外侧防水膜应依次自下而上进行粘贴,保证搭接部位开口朝下,减少进水隐患。
(2)在粘贴防水膜时,要确保基层完全干燥,避免因墙体潮湿防水膜粘贴不牢。
(3)在雨季施工时,对于外墙面,尤其是门窗洞口四周宜采用防水砂浆进行找平,以防止雨水长时间冲刷墙体导致雨水渗到防水膜内部,影响粘贴质量。
(4)针对非自粘型防水隔汽膜和防水透气膜,施工方法简单总结为四个字:粘、涂、刮、压,即首先将防水膜粘帖在窗框上,然后将用胶以“S”形涂在墙体上,其次将胶进行均匀刮平,将膜进行粘贴,并进行压实。值得注意的是,在将胶刮平时,确保胶能连续不断开。
2.2 混凝土工程
在进行混凝土浇筑时,确保混凝土振捣密实,避免出现蜂窝、麻面等质量缺陷。混凝土拆模后应将模板对拉螺栓套管进行气密性封堵,由于对拉螺栓设置较多,因此容易疏漏,所以务必将所有套管进行封堵,避免因小失大。
2.3 砌筑、抹灰工程
在砌体结构施工时,应充分考虑砌体收缩裂缝、开裂等因素,严格控制砌块选用、龄期、砂浆饱满度、砌筑高度等,以蒸压砖和混凝土砖为例,由于其早期收缩值较大,因此需在龄期28天后才可投入使用,如砌块本身存在破损、裂缝等缺陷时,对砌体强度产生不利影响,会产生裂缝现象。砌筑时,严格控制砌筑砂浆厚度和饱满程度,以及每日砌筑高度和填充墙顶部与主体结构之间空隙部位的斜砌时间。
抹灰层可以构成气密层,还可以弥补墙体砌筑缺陷,因此抹灰时也要采取防开裂措施,尤其是两种材料交接部位,需要采取挂网等防开裂措施。
由于墙体开裂会对建筑整体气密性造成很大影响,因此在砌筑、抹灰过程中充分考虑墙体开裂因素,将墙体开裂风险降至低,以此确保维护结构的气密性。
2.4 安装工程
被动房气密性在设计阶段、施工阶段需要注意气密性问题,而往往忽视使用阶段的气密性问题。这里仅以地漏、洗漱盆为例,在被动房项目装修完成后进行气密性竣工测试时,地漏、洗漱盆等部位容易出现空气泄漏现象,而国家标准GB50015《建筑给水排水设计规范》中4.5.9条和4.5.10条分别规定:带水封的地漏水封深度不得小于50mm和优先采用具有防涸功能的地漏。但是笔者认为,由于长时间不用水封容易干涸,而具有防干涸的地漏在长期使用后回弹功能变差等问题,致使管道异味仍进到室内,因此需要设置永 久性且不受外力干扰的气密性措施。
3 气密性检测及评估
采用“鼓风门法”鉴定一栋被动房或一户被动房及逆行压力测试。将风机安装在位于外围护结构上的门或窗洞口上,并将室内其他非永 久性开口部位进行封堵。先后建立50Pa的微正压和微负压并测得在该风压下风机抽吸的空气体积流量。值得注意的是建筑越大,越容易达到n50≤0.6h-1的要求,实际上,n50达到0.6的大型建筑仍有可能存在大量漏气问题,因此对于大型被动式建筑,即Vn50≥4000m时,既要测试每小时换气次数(n50),也要测试建筑渗透性(q50),而q50应小于等于0.6m/(h.m)。



































冀公网安备13010402003046号