本案为入住后半年拍摄。真实的还原,家居实用主义装饰艺术。常住3人,父母和儿子,长辈偶尔小住。中大户型在满足功能的前提下,就要体现大的一面。原本封闭的厨房,打开。相对封闭的客卫洗手区,打开。原本封闭的书房空间,打开,做联动通透推拉增加采光通透的前提下保留一定私密性。不放弃一点能增大空间感受和引入采光的点。材质上环保级别,质感哑光品质。色彩上整体底饱和度暖灰调,点缀单品特色家具装饰。营造舒适和谐有趣味品质的居住氛围。
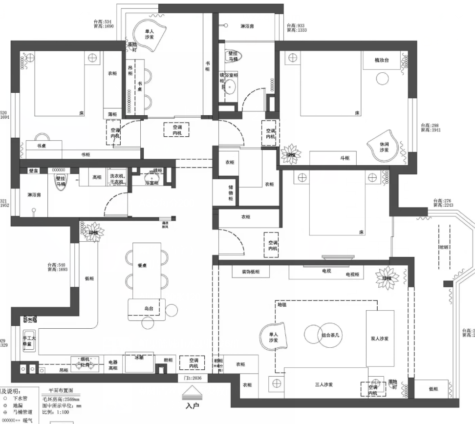
户型图


本案原始结构,客餐厅间过道狭窄,厨房空间缺少大的收纳面,餐区在放完餐桌椅子的基础上过道已经很窄,动线不便。客卧外过道柜利用不合理,有浪费空间,主卧缺少收纳空间,主卧书房次卧三个空间之间的过道略显狭长,没有利用好这么长的动线来规划功能,或释放空间感。卫生间部分也是功能混乱,使用时互相干扰。 设计师在入户设计上,任然选择保持空间通透性,没有在正面做屏风或所谓意义上的玄关。而是随墙安排各收纳功能,让区域保持大限度的开阔感,这点在小户型里其实也很管用。客卫干区没有拆除隔墙,而是做了局部镂空,保证开阔性的基础上,保留了私密性。洗手区正常使用中相对乱一些,这样的做法保了主体空间效果的完整性。将书房空间对过道的墙体拆除,让空间感加大。为保证主卧的大空间,主卧衣帽间部分借用了客卧的部分空间。这样的做法充分利用了户型岛区域,把这个区域给到各个方向来使用。这样空间利用率非常高。让床的一侧不再是衣柜的老套规划。卫生间部分能分离就分离能立就立。
玄关设计前
原本入户空间层次混乱,厨房的立让客餐厅各为立,空间感小,互动性差。
玄关效果图
玄关实景
打开厨房,收纳功能随墙。收获大开敞空间。将玄关的意义延长到了书房背景装饰。入户空间的选择在满足收纳功能的前提下,要么立要么开敞。这里我们选择空间为主。
客厅设计前


客厅效果图




客厅实景









客厅原本碎片化的窗户,让我们调整设计的完整大气,观景通透。客餐厨的通透,大大提升了户型的舒适性、互动性。材质上都选择的哑光系列。环保。打造柔和放松,略带休闲气氛的环境。大地色系的放松氛围下。局部的亮色给空间增添活力、趣味。
餐厅设计前


餐厅效果图


餐厅实景




打开的餐厨区肉眼可见的变化。岛台加上 大餐桌的配置是之前空间不敢想象的。收纳也大幅提升。站在厨房望向客厅。大纵深展现户型气质。没有将卫生间洗手区的墙体打通,而是掏洞,设计通透隔断。保留私密整洁性的同时,加大空间开阔尺度。
次卫设计前
次卫效果图


次卫实景


客卫保留洗手盆外置,使用方便,里外互不干扰,洗衣机干衣机能放进立空间就放进去,干衣机的噪音和时长,尽量不影响公共区域生活体验感。瓷砖为大砖上墙,薄贴。简洁大气。镜柜保证浴室柜区域的整洁度。入住前入住后基本不会有翻车的现象。洗衣机旁的生活高柜,各种装备,脏衣篮全部收入其中。也是为保证效果而生。性上一直倾向哑光砖。主体素色,局部纹理或色彩点缀。窗户使用了内置百叶,虽然有比较低的故障风险,为了居住体现还是选择了。
次卧设计前

次卧效果图
次卧实景



儿子卧室,满满的莫兰迪,让生活充满感。
书房设计前
书房效果图


书房实景



书房空间安排了双人工作台,休闲阅读角。绿植营造放松气氛。满满的氛围感。
客卧设计前
客卧实景图


客卧是烘托气氛的空间,禅意的树枝台灯,让空间瞬间颜值爆表。小空间没有做过度修饰而是尽量留白,让其有延展力。不显局促为宜。
主卫设计前
主卫实景
主卫在灰调的基础上融入同色系随形水磨石砖,加入了略偏灰度的木色浴室柜。整体营造品质舒缓的卫浴氛围。
主卧设计前
主卧效果图


主卧实景


.png)
主卧的空间设计,借客卧的空间做了个步入式衣帽间。以保证主卧使用的整洁和大气感。灯光上也是延续以往的可明亮可氛围的两种光照模式设计。
































冀公网安备13010402003046号